Facile, rapide et gratuit

Créez votre site maintenant

Je crée mon site
Site gratuit créé sur

cbe_invest@yahoo.com / 06.64.93.01.17

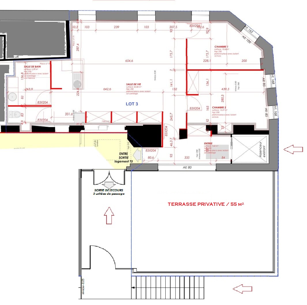
La SCI CBE INVEST 1 vous propose au centre ville de POITIERS, au 19 rue Paul Bert - 1Ter rue du Moulin à Vent, un appartement de 4 pièces de 80 m² intégralement rénové en prestations haut de gamme, avec très grande terrasse de 55 m², ascenseur et emplacement de parking.

                                                  

Appartement ancien (1900) en  copropriété de 4 pièces en revêtement intégral carrelage imitation parquet miel d'une superficie de 80 m² situé au 1er étage.

 

Superficie :

 

• Entrée : 8 m²

• Double séjour / Cuisine : 41 m²

• Сhambre 1 : 10 m²

• Сhambre 2 : 13 m²

• WC: 2 m²

• Salle d’eau : 5 m²

• Terrasse : 55 m²

 

Énergie :

 

• Chauffage électrique central par 5 radiateurs THERMOR BALEARES:

    3 x 2.000 W et 2 x 1.500 W

• Séche-serviette ATLANTIC : 1 x 750 W

• Production d’eau chaude individuelle avec ballon électrique:

    ATLANTIC LINEO 80 L

 

Équipements :

 

• Porte sécurisée 3 points & coupe-feu

• Carrelage grès cérame émaillé rectifié AUBADE PAMESA

               CERAMICA CHIZE, imitation parquet, teinte miel, 20x120

• Faïence, imitation marbre blanc

• Plafonniers IKEA TIDIG 5 spots (Ampoules LED GU10 –

    230 lumens) x 2

• Lavabo résine blanc, avec robinetterie PAINI, sur meuble salle de bain

   DUO EXPRESS DELPHA et miroir LED 60

• WC JACOB DELAFON EOLIA

• Douche receveur AQUABELLA 90x120 avec coulissant SAMSWISS et

   mitigeur PAINI

 

Notices à télécharger :

 

• Radiateurs THERMOR BALEARES 2

• Séche-serviette ATLANTIC DORIS

• Ballon d'eau ATLANTIC LINEO 80 L

• Plafonnier IKEA TIDIG

 

Isolation :

 

• Isolation ISOVER cloison intérieure / 45 mm
• Isolation ISOVER mur extérieur / 120 mm

• Isolation ISOVER plafond / 200 mm

• Faïcence imitation marbre blanc

DPE C : 167 kWh/m²/an